FCE系列流化包覆机是一款专门针对锂电池正、负极材料制备而设计开发的新型包覆设备,特别适用于锂电池正、负极材料的均匀包覆,具有包覆效果好、高效节能、自动化程度高等综合优势、/span>

FCE流化包覆机外形图
工作原理
FCE包覆机是在传统机械式包覆机的基础上,增加:雾化进料装?外循环撞击强化装置,实现高效包覆和快速干燥、/span>
在设备内部,通过机械式旋转桨叶对物料进行不断的碰撞与剪切,使溶剂与粉体产生搅动和分散,实现搅拌干燥;
在设备外部,设置外循环强化装置,其主要由两部分系统组成:?)雾化进料装置:使溶剂、二次料和压缩空气雾化混合,实现充分浸润接触;(2)撞击流强化分散装置:一方面通过外部循环,提高机械搅拌效率;另一方面,利用撞击流强化分散装置,实现团聚物料撞击分散,从而完成高效包覆、快速干燥、/span>

FCE流化包覆机内?/span>
产品特点
1、包覆效果好
进料过程中,二次粉体及溶剂采用气流分散方式进料,增大粉体颗粒、液体颗粒之间的间隙,从而使溶剂与粉体充分接触浸润,实现均匀包覆、/span>
2、高效节胼/span>
?)采用雾化进料,粉体和溶剂接触效果好,有效减少搅拌包覆时间;
?)干燥过程中,设备具有强化分散功能,减少潮湿粉体间的团聚,减少粉体干燥时间、/span>
3、产品形貌稳宙/span>
具有雾化分散以及撞击流分散装置,在设备运行过程中,可适当降低机械混合设备的转?nbsp;,从而减小叶片与物料的碰撞强度,减小对粉体形貌的破坏、/span>
4、智能化程度髗/span>
根据不同包覆工艺需求自动调整进料(液)速度、雾化压力、撞击强度等,设备智能化程度高、/span>
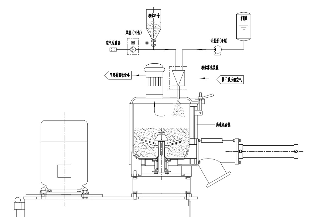
工艺说明
1、压缩空气由厂内空气压缩机提供;溶剂由计量泵供给;二次粉由风机(根据料仓位置选配)进行供给;
2、压缩空气、溶剂与二次粉体同时进入“粉体雾化装置”,在“粉体雾化装置”内实现快速分散、包覆;
3、雾化包覆完成的物料通过“管道”及“分散喷嘴”进入机械混合机:/span>
4、包覆完成后的物料在混合机内沉降,并通过机械混合机进行搅拌、干燥;
5、混合机内由于粉体雾化产生的粉尘,通过除尘器进行过滤,过滤后的气体进入冷干机进行溶剂回收、/span>

雾化进料工艺简国/span>
性能对比
项目 |
机械式包覆机 |
FCE流化包覆朹/span> |
包覆时间 |
镾/span> |
?/span> 1.机械混合?雾化进料装置+气流强化分散装置 ,减少包覆干燥时间、/span> |
产品团聚 |
易团聙/span> |
不易团聚 1.因增加气流强化分散装?nbsp;,有效分散机械包覆过程中产生的团聚、/span> |
产品品质 |
?/span> 1.长时间高速旋转的桨叶对物料不断地进行搅拌与剪?nbsp;,破坏颗粒的原始形貌、/span> |
奼/span> 1.包覆时间?nbsp;,减小搅拌叶片对物料作用时间:/span> 2.可适当降低机械混合机的转?nbsp;,减小叶片与物料的碰撞强度、/span> |
系统复杂程度 |
简協/span> |
较复杁/span> 1.需设置:雾化进料装?气流强化分散装置、/span> |
能耖/span> |
髗/span> 1.因混合时间长 ,搅拌能耗高:/span> 2.发热量大 ,冷却能耗高、/span> |
位/span> 1.混合时间短、强度低 ,搅拌能耗小:/span> 2.分散效果?nbsp;,热传递效率高、干燥时间短、/span> |
物料残留 |
?nbsp;,无外部循环机构 ,物料残留量尐/span> |
较少 1.因采用气流强化分?nbsp;,气流会使除尘器中存在少量物料残留、/span> |
应用案例
目前设备已在多种包覆领域实现应用,典型应用有9/span>
1、石墨、硬碳表面包覆液态沥青或树脂实现表面碳层改变
2、金属粉末表面包覆实现改?/span>
3、正极材料表面包覆改?/span>
更多设备信息请联系我们!