3172
2025-07-16
中国粉体网讯玻璃基板是一种表面极其平整的薄玻璃片,是平板显示产业以及半导体封装等领域的关键基础材料。按化学成分可分为硼硅酸盐玻璃基板,因低热膨胀系数适用于高精度显示设备;铝硅酸盐玻璃基板,具有良好的化学稳定性和机械强度。另外还有硅基玻璃基板、锌硼玻璃基板、草酸钾玻璃基板、钠硅玻璃基板等、/p>
玻璃基板产业链包括生产原料、设备、技术、封装、检测、应用等环节。上游为生产原料、设备环节,中游为技术、封装、检测环节,下游为应用环节、/p>

玻璃基板产业链及各环节相关企?nbsp; 来源:东兴证券研究所
上游:生产原料、设夆/strong>
玻璃基板制造需硅砂、纯碱、石灰石、硼酸、氧化铝等原料、/p>
硅砂:硅砂,又名二氧化硅或石英砂,是以石英为主要矿物成分、粒径在0.020mm-3.350mm的耐火颗粒物,根据开采和加工方法的不同分为人工硅砂及水洗砂、擦洗砂、精选(浮选)砂等天然硅砂、/p>
纯碱:化学式为Na2CO3,俗名苏打、碱灰、碳酸二钠盐、苏打灰,通常情况下为白色粉末,为强电解质,密度为2.532g/cm3,熔点为851°C,易溶于水和甘油,微溶于无水乙醇,具有盐的通性,属于无机盐、/p>
石灰石:主要成分碳酸钙(CaCO3),理论上由氧化钙(CaO?6.04%)和二氧化碳(CO2?3.96%)组成。一般为浅灰、深灰色,含杂质多时颜色发生变化,密?.930g/cm?,熔?25℃,性脆、硬度小、无臭、无味、/p>
硼酸:硼酸,是一种无机化合物,化学式为H3BO3,为白色结晶性粉末,有滑腻手感,无气味,微溶于冷水,易溶于热水、甘油和乙醇。是一种弱一元酸,酸性强于碳酸、/p>
氧化铝:氧化铝又称矾土、刚玉,是典型的两性氧化物,分子式为AI2O3,相对分子质量为101.96。它为白色粉末,密度?.9~4.0g/cm3,熔点为2050℃,沸点?980℃、/p>
玻璃通孔(TGV)设备包括钻孔、电镀设备筈/p>
TGV的加工工艺难点主要在TGV开孔和高质量填充,因此激光开孔设备和电镀设备是TGV工艺较为核心的设备、/p>

国外激光开孔设备厂 来源:广发证券发展研究中忂/p>
国内的TGV激光设备厂商包括帝尔激光、大族激光、德龙激光等、/p>
帝尔激先/strong>是行业内少数能够提供全方位高效太阳能电池激光加工综合解决方案的企业。除了光伏组件端的激光设备外,公司正在丰富产品版图,积极开拓消费电子、集成电路等领域的激光加工设备应用、/p>
大族激先/strong>是激光基础器件、整机设备到工艺解决方案主要供应商,拥有多年对玻璃的超快激光精密加工经验、/p>
德龙激先/strong>是高端工业应用精密激光加工设备及其核心器件激光器生产商,专注于激光精细微加工领域、/p>

激光开孔设 来源:JET Microtech
铜电镀是TGV填孔的关键步骤,TGV电镀与TSV电镀类似,都属于前道电镀设备,目前全球前道电镀设备基本被美国泛林公司垄断,国内的主要电镀设备供应商为盛美上海、/p>

深孔加工工艺的电镀设备 来源:盛美上浶/p>
中游:技术、封装、检浊/span>
玻璃基板生产工艺包括高温熔融、均化处理、成型、加工、清洗检验和包装等环节、/p>
高温熔融:将硅砂、纯碱、石灰石等原料按配方投入窑炉,在1500?1600℃高温下熔化为均匀玻璃液,需精准控温保证成分均匀,是奠定玻璃基础性能的关键、/p>
均化处理:采用搅拌、澄清等手段,消除玻璃液内气泡、条纹等缺陷,提升均匀度与纯净度,常用铂金搅拌棒、超声波澄清技术,保障后续成型质量、/p>
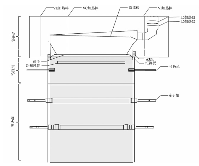
成型:主流有溢流下拉法(玻璃液从溢流槽溢出,自然下拉成板,适合超薄基板,如OLED用)、浮法(玻璃液漂浮在锡液表面摊平,用于大尺寸LCD基板)、狭缝下拉法(通过狭缝模具控制厚度,精度高),决定基板尺寸、厚度与表面平整度、/p>

溢流下拉法成型工艺流程图 来源:《液晶玻璃基板溢流下拉法成型区析晶分析与对策》(姚文龙等(/p>

浮法玻璃生产工艺流程 来源:《浮法玻璃生产工艺流程及改进措施》(高岩英)

狭缝下拉法生产示意图 来源:《柔性玻璃狭缝下拉法成形工艺模拟研究》(吴建磊)
加工9/strong>包含切割(激光或金刚石刀具切出目标尺寸)、研磨抛光(改善表面粗糙度,达到纳米级精度,满足显示需求)、强化(化学钢化或物理钢化,提升机械强度,抗冲击、划伤),细化基板性能、/p>
清洗检验:多步清洗(去离子水、化学试剂、超声清洗)去除杂质,结合光学检测(检查表面缺陷、厚度均匀性)、理化测试(测化学稳定性、热性能等),筛选合格产品、/p>
包装9/strong>洁净环境下,用防静电、防潮包装材料封装,做好防护,便于仓储、运输,避免二次污染与损坏,保障交付质量、/p>
在玻璃基板产业链中,封装与检测环节对保障玻璃基板质量、拓展其应用起着关键作用封装环节
半导体封装领域:作为封装基板,需要与芯片、引脚等进行连接和封装。常见的封装方式有倒装芯片封装,将芯片的有源面直接与玻璃基板上的金属焊盘进行连接,实现芯片与基板之间的电气连接;还有扇出型封装,将芯片周围的线路重新布线到玻璃基板上,实现更小的封装尺寸和更高的集成度、/p>
显示领域9/span>玻璃基板与液晶材料、偏光片、彩色滤光片等进行组装,形成完整的显示模组。在这个过程中,需要进行精密的对位和贴合,确保各个部件之间的位置精度和连接可靠性、/p>
检测环节:会借助多种专业设备与测试手段保障质量,通过光学显微镜、电子显微镜等设备开展外观检测,检查表面是否有划伤、裂纹、气泡、杂质等缺陷,确保表面质量合规;利用激光干涉仪、光学轮廓仪等精密仪器进行尺寸检测,把控厚度、平面度、翘曲度等尺寸参数,满足生产对精度的要求;针对半导体封装和显示领域应用的基板,检测绝缘电阻、介电常数等电学性能,保障电气性能适配设备运行;还通过高温老化、湿热试验、机械振动等可靠性测试,评估不同环境下的性能稳定性与使用寿命,确保实际应用可靠、/p>
下游:应?/span>
玻璃基板产业链下游涵盖众多关键应用领域,在显示和半导体领域表现尤为突出、/p>
显示领域:玻璃基板是液晶显示(LCD)与有机发光二极管(OLED)显示器的重要组成部分。在电视、智能手机、平板电脑、笔记本电脑等各类电子产品的显示屏中,玻璃基板发挥着支撑与保护作用,保障显示效果的清晰和稳定、/p>

玻璃基P0.9超薄HDR Micro LED显示屏来源:京东斸/p>

玻璃基LED背光双面电路?nbsp;来源:百柔新材料
半导体领域:玻璃基板正凭借自身优势,在先进封装环节崭露头角。现代高性能芯片在运行时会产生大量热量,传统有机材料基板与晶片的热膨胀系数差异较大,在高温环境下易出现变形或断裂等问题,影响芯片性能和使用寿命。而玻璃基板具有热稳定性和机械稳定性强、平整度高、布线密度高、介电损耗低等优势。例如,?.5D/3D封装中,玻璃基板可通过TGV技术实现更密集的电气互联,在有限空间内支持更多信号传输,有效降低互连之间的电容,实现更快的信号传输,提高整体性能,满足人工智能?G通信、高性能存储与大模型高性能计算等对高效能比的需求、/p>

玻璃基高精密多层布线技?nbsp; 来源:沃格光甴/p>
此外,玻璃基板在其他领域也有广泛应用。在光学器件方面,如光学镜头、激光系统以及传感器等,高质量的光学玻璃基板能够提供优异的光学性能,确保光学成像的精确性,通过特殊涂层技术还可实现抗反射、抗紫外线等功能,提升光学器件的综合性能。太阳能技术领域,太阳能电池板常使用强化玻璃基板作为覆盖层,这不仅能提高电池的光电转换效率,还能增强电池的耐久性和抗风能力,助力绿色能源产业发展。在汽车工业中,随着智能汽车技术的进步,玻璃基板应用于车载显示屏、HUD(抬头显示)系统等,其优异的光学性能和耐高温特性,保障了驾驶过程中显示的清晰度和安全性。智能家居设备与医疗设备中的触控屏、显示屏及其他电子元件,也逐渐采用高性能玻璃基板,以获得稳定的支撑及优良的耐用性、/p>

柔性太阳能电池?nbsp;来源:美能光伎/p>
参考来溏
各企业官罐/p>
广发证券《半导体设备系列研究之二十八 玻璃基板从零到一,TGV为关键工艺《/p>
东兴证券《玻璃基板行业五问五答——新技术前瞻专题系列(二)《/p>
高岩?浮法玻璃生产工艺流程及改进措於/p>
姚文?液晶玻璃基板溢流下拉法成型区析晶分析与对筕/p>
刘丹.玻璃通孔成型工艺及应用的研究进展
陈力.玻璃通孔技术研究进屔/p>
吴建?柔性玻璃狭缝下拉法成形工艺模拟研究
(中国粉体网编辑整?月明)
?图片非商业用途,存在侵权告知删除!
2025-11-10
2025-11-06
2025-11-04
2025-10-29
2025-10-29
2025-10-28
2025-10-27
2025-10-24