摘要:铜冶炼过程中产生的烟尘灰富含铜等有价金属和其他有害元素+/span>既一种有危害的固体废弃物,也是可加以回收利用的资源。目前行业内采用的大多是湿法分离单种或多种有价值金属,但湿法分离工艺复杂并产生大量废水,成本过高且不利于环境保护、/span>山东摩克立粉体技术设备有限公司采用干法分离技术,回收铛/span>和其他元素,工艺结构简单,设备占地小,结构布置灵活,前
后可连接其他工艺设备,不使用化学药剂,解决了冶金粉尘皃span style="line-height: 1.75em;">环保问题,降低了冶金粉尘回收利用的成本。本工艺可完全替
代湿法分离法或作为前端工艺降低之后湿法分离的工作量、/p>
关键词:白烟尘铜干法分离气流分级粉体技?/p>
1.发展现状
铜冶炼生产过程中产生的烟尘灰往往富含铜等有价金属和其它有害元素,既是一种有危害的固体废弃物,也是一种可加以回收利用的资源。目前行业内采用的大多是湿法分离单种或多种有价值金属,但湿法分离工艺复杂并产生大量废水,成本过高且不利于环境保护、/p>
山东摩克立粉体技术设备有限公司针对该问题做出优化设计,利用空气动力学干法分离冶金粉尘中的不同物质,采用干法分离铜的技术,回收铜等有价元素及其他元素,回收工艺结构简单可靠,设备占地小,结构布置灵活,前后可连接其他工艺设备,不使用化学药剂,解决了冶金粉尘的环保问题,降低了冶金粉尘回收利用的成本。本工艺可完全替代湿法分离法或作为前端工艺降低之后湿法分离的工作量、/p>
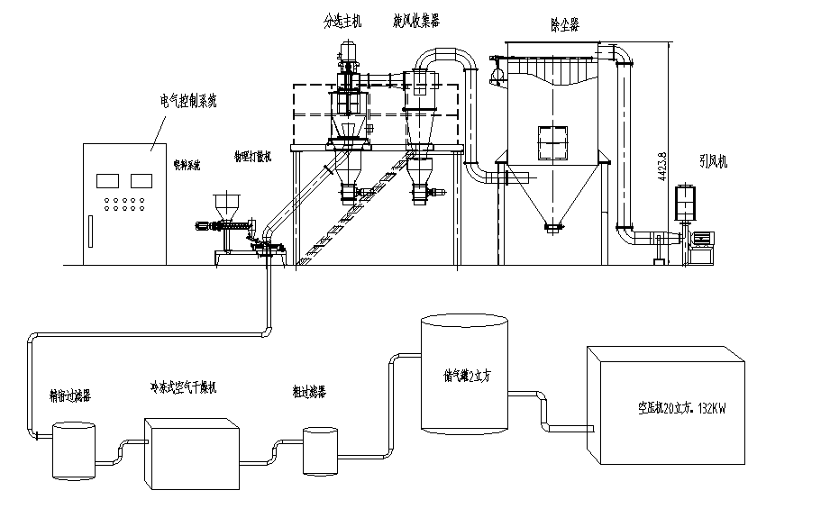
2.摩克立干法分离回收铜的气力破碎与分级回收技术与工艺方法
2.1气力破碎技术:经实验分析,白烟尘分离铜与氧化铜可用圆盘气流粉碎机对粉料粒度进行加工后进入气流分级机,气流分级机可按比重不同分离两种物料,因此选用圆盘气流粉碎+QF气流分级串联工艺、/p>
圆盘型气流粉碎机,是德国摩克立公司粉碎、分级技术的粉碎分级设备。工作原理是压缩空气经干燥过滤后,通过拉瓦尔喷嘴高速射入粉碎腔,在多股高压气流使物料被反复碰撞、摩擦、剪切而粉碎,粉碎后的物料在风机抽力作用下随上升气流运动到分级区,细粉在气流带动下进入旋风分离器收集,粗颗粒下降至粉碎区继续粉碎,扁平化设计适用于本物料低粉碎、通过量大的要求、/p>
2.2分级回收技术:QF型分级机,是引进德国摩克立公司分级机技术的新一代分级机,其特点是整机系统负压运行,分级原理改变了传统的旋风分级,而是增加了二次气风栅装置,提供均匀风量,使物料充分分散、上升,到达分级区,高效分级,从而使分级效率提高,产量增大,能耗降低。粒度采用变频调节,调节范围宽(100~6000目)。除尘器采用电脉冲除尘,整机结构紧凑,占地空间小;喂料和卸料加用气锤,振动加、卸料;由于系统为负压运行,使环境无粉尘,满足环境指标要求。可与前工序设备对接,还可以多级串联,分出不同的粒度段,更具经济性,对易氧化物料可根据客户要求,设备可留有充氮口及排放口,提供防氧化措施、/p>
2.3工艺流程说明9/p>
物料通过喂料器匀速进入气流粉碎主机,调节气源压力达到主要粉碎白色烟灰,黑色氧化铜尽量保持大颗粒的效果。破碎掉大颗粒及团聚物的物料通过粉碎机进入气流分级机,气流分级机调节叶轮转速可拦截比重较大的氧化铜粉末,回收最大部分的氧化铜,
比重轻的其他粉末可通过叶轮间隙进入旋风收集器,残余粉尘由除尘器收集。整套系统电气部分设计为一键启动,自动化程度高,界面简单易操作、/p>
2.4技术指标:
2.4.1原料名称:白烟尘:/p>
2.4.2工艺要求:粉碎打散大颗粒,分离出氧化铜粉末;
2.4.3设备选型:根据产品细度及产量要求选用10立方圆盘型气流粉碎主?QF700气流分级机;分级机功率:7.5KW;风机功率:37KW、/p>
2.5物料经螺旋喂料器均匀进入圆盘磨打散,把绝大部分白烟尘中白霜和含铜化合物充分打散分离,在风机高压抽力作用下进入分级机。分级主机在分级叶轮离心力作用下,达到要求的物料留在分级机,通过下料口出料,回收最大部分的氧化铜;
较轻白霜进入旋风收集器收集。在分级机下料口取料分析:观察到含铜化合物与白霜分层效果明显,白霜漂浮在上,含铜化合物比重较大沉在白霜下面,如图一。在旋风收集器出料口取料分析:通过充分搅拌静置后,物料下方呈现白色粉末状,没有分层现象,说明含铜化合物全部经分级机收集,没有通过旋风收集器,效果明显,如图二、/p>
图一

图二

4、设备流程图9/p>

冶金粉尘由螺旋喂料均匀进入气流打散粉碎机,大颗粒粉尘及团聚物会在气流打散粉碎机内发生碰撞,粉尘中各种成分的硬度不同打散粉碎的程度也不同,增加之后的分离效率、/p>

粉碎打散后的粉尘进入气流分级机,利用各物料的比重不同调节分级轮转速可将大比重物料拦截,其余物料则可以通过分级叶轮,按工艺要求进入二级分级机或进入旋风收集器、/p>
将所需分离的物质分离出后,剩余的物料由旋风收集器收集,高效旋风收集器各部分尺寸比例优化,提高收集效率,最高可?9%以上的成品收集率,减少进入除尘器的粉尘,降低除尘工作量,延长除尘布袋寿命、/p>
高效旋风收集器除尘器无法收集的少量粉尘由布袋除尘器收集,除尘器布袋材料可选用防静电针刺毡,过滤效率高风阻小,脉冲仪自动控制脉冲除尘阀定时反吹清洁布袋,使除尘器风阻稳定工作正常、/p>
经过除尘器过滤,引风机出口的空气洁净,符合国家标准,安全环保避免粉尘爆炸,不污染环境,工人工作环境干净卫生,免除粉尘危害、/p>
至此,白烟尘中的各种物质按比重从不同出料口收集完成,气流打散分离流程结束。从分级机底部得到最大部分的氧化铜。完成了从白烟尘中分离出铜的工艺流程、/p>
参考文献:
1曹诗倜,顾钰文,彭联跃,冼金?用H_(106)从氯化物溶液中萃取第四、五族元素的研究[J]:span style="line-height: 1.75em;">湖南冶金?981?1朞/span>
2罗礼庆,李振?单效真空蒸发器处理硫酸铜母液的研究[J];重庆环境科学;1985?6朞/p>
3平田富士?丁国?玉野冶炼厂电解液净化方法的改进[J];中国有色冶金;1986?5朞/p>
4成万?非晶态半导体的费米能级[J];山东大学学?工学??989?4朞/p>
5钟林.阳极铜溶解量的计算方法及其应用[J];有色金?冶炼部分)?994?5朞/p>
6钟林.电解铜板面粒子的产生与防治[J];有色金?冶炼部分)?994?6朞/p>
7龙子?贵冶电铜质量技术攻关的实践[J];铜业工程;1994?3朞/p>
8吴继?高杂质铜电解净液方案探讨[J];有色冶炼;1994?4朞/p>
9王红卫,李庆?石菉厂铜电解精炼过程中杂质的分布及对其控制的初探[J];有色冶炼;1994?5朞/p>
10聂仲?高铋阳极铜的电解精炼[J];有色冶炼;1995?5朞/p>
2725
        0
       
     
     - EVA型热熔胶书刊装订强度检测与质量控制研究
 - 自动热压机的发展趋势是怎样的?
 - 用户论文 ▏化学吸 ▏铱-铼共沉积乙醇处理后SiO2载体催化剂应用在甘油氢解反应
 - 为什么近期单壁碳纳米角(CNH)的研究进展值得关注>/a>
 - 为什么介孔SiO2在药物递送领域的应用越来越多>/a>
 - FRITSCH飞驰球磨——不锈钢介导的水中球磨条件下定量H2生成实验研究
 - 为什么MoS2在催化领域的研究进展值得关注?
 - 飞纳台式扫描电镜助力纳米纤维在心血管组织再生中的研穵/a>
 
- 磷酸化修饰鬼臼果多糖的制备及生物活?/a>
 - DSR论文解读:Advanced Science News 报道中科院长春应化所新型非铂催化材料研究成果
 - High-throughput preparation, scale up and solidification of andrographolide nanosuspension using hummer acoustic resonance technology(纳米混悬剂制备的前瞻性技 - 蜂鸟声共振)
 - 扫描电镜优秀论文赏析|飞纳台式扫描电镜电极材料上的应?/a>
 - 扫描电镜论文赏析-干旱影响杨树叶片及次生木质部发育的分子机刵/a>
 - 压实度与密实度的区别
 - 振实密度和压实密度的关系
 - 勃姆石专用气流粉碎机分级机打散机
 
     
    
