如何解决离心机脱水åŽç‰©æ–™çš„自动化输é€ï¼Ÿ
离心机脱水åŽç‰©æ–™çš„è¾“é€æ–¹å¼ï¼Œå¯é‡‡ç”¨å¦‚ï¼šç®¡é“¾è¾“é€æœºã€èžºæ—‹è¾“逿œºã€çš®å¸¦å¼è¾“逿œºæˆ–äººå·æ¬è¿ç‰å¤šç§è¾“逿–¹å¼ã€é¦–å…ˆï¼Œæ ¹æ®éœ€æ–¹è‡ªå·±çš„工艺æ¥é€‰æ‹©ç¦»å¿ƒæœºçš„脱水方å¼ã€‚åŒ–å·¥è¡Œä¸šå¸¸ç”¨çš„ç¦»å¿ƒæœºæœ‰å¦‚ä¸‹å‡ æ¬¾ï¼™ü/span>
1ã€ç«‹å¼åˆ®åˆ€ç¦»å¿ƒæœ

2ã€å§å¼åˆ®åˆ€ç¦»å¿ƒæœ¹ü/span>

3ã€æ‹‰è¢‹å¼ç¦»å¿ƒæœ¹ü/span>

ç›®å‰åœ¨ä¸å›½æå€¡èŠ‚èƒ½çŽ¯ä¿ã€å®‰å…¨ç”Ÿäº§å´åˆåŠ³åŠ¨åŠ›ç´§ç¼ºçš„å‰æä¸‹ï¼Œå¦‚ä½•è§£å†³ä»¥ä¸Šä¸‰ç§ç¦»å¿ƒæœºè„æ°´åŽçš„物料自动化输é€ï¼Œæˆäº†åŒ–å·¥ã€åŒ»è¯ã€æ–°ææ–™ã€å†œä¸šç‰å„大行业最为关切的问题ã€è€Œåœ¨æ¤æ—¶ï¼Œå¼—æ ¼æ£®è¾“é€æœºæ¢°ï¼ˆå¸¸å·žï¼‰æœ‰é™å…¬å¸ï¼ˆå™æ€»ï¼š13515269469)在解决离心机脱水åŽç‰©æ–™çš„自动化输é€çš„问题上,公å¸ç ”å‘的输é€è®¾å¤‡æ— 论是在技术上,还是在行业内的å£å•¤ä¸Šï¼Œéƒ½å–å¾—äº†å‚²äººçš„æˆæžœã€å› æ¤ï¼Œå…¬å¸å†³å®šå°†æˆ‘ä»¬çš„æˆæžœæ•´ç†å‡ºæ¥ï¼Œåˆ†äº«ç»™å…¶å®ƒæœ‰éœ€æ±‚的行业或åŒè¡Œä¼ä¸šç‰ã€
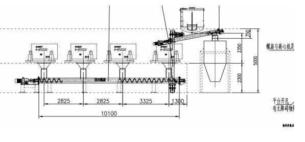
一ã€é€‰æ‹©ç«‹å¼åˆ®åˆ€ç¦»å¿ƒæœºæ—¶ï¼‹ü/span>ç”¨æˆ·æ˜¯æ ¹æ®è‡ªèº«çš„产能æ¥åŒ¹é…ç›¸åº”å°æ•°çš„æœºå™¨ï¼Œä¸€èˆ¬ä¸º 2 å°ã€15 å°æˆ–è€…æ›´å¤šçš„å°æ•°ã€‚ä¸ºäº†èƒ½å¤Ÿå®žçŽ°è‡ªåŠ¨åŒ–ç”Ÿäº§ä»¥åŠæ“作场地的美观,离心机的布置方å¼å¯é‡‡å–æˆæŽ’æˆ–è€…çŸ©å½¢çš„æ–¹å¼æ¥å¸ƒç½®ã€‚离心机脱水åŽçš„ç‰©æ–™å«æ°´çŽ‡æ˜¯ç”±æ‰¹æ¬¡æ—¶é—´ã€è®¾å¤‡èƒ½åŠ›æ¥å†³å®šçš„(一般在 3%å’ 15%ä¹‹é—´ï¼‰ï¼Œå› æ¤ç¦»å¿ƒæœºè®¾å¤‡æœ¬èº«çš„问题,或者æ“作ä¸å½“ç‰é—®é¢˜éƒ½ä¼šå¯è‡´æ¯æ¶²æµè‡³ä¸‹å±‚设备ä¸ã€‚æ¯æ¶²ä¸å¦‚嫿œ‰æ˜“ç‡ƒã€æ˜“çˆ†å’Œæ¯’æ€§æ°”ä½“ï¼Œæ¤æ—¶å°±å¿…é¡»è¦è€ƒè™‘密é—输é€ã€
二ã€é€‰æ‹©å§å¼åˆ®åˆ€ç¦»å¿ƒæœºæ—¶ï¼‹ü/span>ç”¨æˆ·å¯æ ¹æ®è½¦é—´é«˜åº¦å’Œå·¥è‰ºè¦æ±‚,选择 1 å°æˆ– 10 å°è®¾å¤‡ï¼Œå¹å¸ƒç½®æˆä¸€å—åž‹ã€‚é€‰æ‹©æ¤æ¬¾ç¦»å¿ƒæœºæ—¶ï¼Œå‰æœŸè®¾è®¡å¿…é¡»è¦è€ƒè™‘到出料å£çš„离地高度,åŽç»è‡ªåЍåŒè¾“逿‰å¥½å¯¹æŽ¥ï¼Œå¾ˆå¤šé¡¹ç›®çš„æ”¹é€ ,多åŠå› 为离地高度而å—到了é™åˆ¶ã€‚物料脱水åŽï¼Œå› 嫿°´çŽå‘生了å˜åŒ–,离心机ä¸çš„物料有时则会呈现结å—çŠ¶ã€‚æ¯æ¶²ä¸å¦‚嫿œ‰æ˜“ç‡ƒã€æ˜“çˆ†å’Œæ¯’æ€§æ°”ä½“ï¼Œæ¤æ—¶å°±å¿…é¡»è¦è€ƒè™‘密é—输é€ã€
三ã€é€‰æ‹©æ‹‰è¢‹å¼ç¦»å¿ƒæœºæ—¶ï¼Œå› 为环ä¿ã€åŠ³åŠ¨åŠ›ç´§ç¼ºã€å¸‚场需求é‡å°ï¼Œç”¨æˆ·é€‰æ‹©æ¤ç±»è®¾å¤‡å·²é€å¹´å‡å°‘ã€‚ä½†å› ç‰¹æ®Šå·¥è‰ºè¦æ±‚ï¼Œåˆæˆ–ä»ŽæŠ•å…¥æˆæœ¬ä¸Šè€ƒè™‘,ä¾ç„¶æœ‰ä¼ä¸šä¼šé€‰æ‹‰è¢‹å¼ç¦»å¿ƒæœºçš„脱水方å¼ï¼Œæ•ˆçŽ‡é«˜ï¼Œäº§èƒ½å¤§ã€‚ä½†æ¤æ¬¾ç¦»å¿ƒæœºçš„åŽç»ç‰©æ–™è¾“é€ï¼Œå¤šæ•°é‡‡ç”¨æ–™æ¡¶äººå·¥æ¬è¿ï¼Œå› æ¤åªèƒ½v>é€‚ç”¨äºŽäººå·¥æˆæœ¬ä½Žã€çޝä¿è¦æ±‚低的国家和地区ã€å¦‚何解决离心机物料脱水åŽçš„自动化输é€ï¼Œé€‰æ‹©ä»€ä¹ˆæ ·çš„è¾“é€æ–¹å¼æˆäº†ç”¨æˆ·çš„一个大难题ã€è€Œå¦‚æžœä½ é€‰æ‹©å’¨è¯¢å¼—æ ¼æ£®è¾“é€æœºæ¢°ï¼ˆå¸¸å·žï¼‰æœ‰é™å…¬å¸ï¼ˆå™æ€»ï¼š13515269469),公å¸ä¼šæ ¹æç”¨æˆ·çš„å®žé™…æƒ…å†µç»™ä½ æŽ¨èä¸åŒçš„输é€è®¾å¤‡ã€æ ¹æ®å„ç§è¾“逿–¹å¼çš„利与弊,一般会推èä»¥ä¸‹å‡ ç§è¾“逿–¹å¼ï¼š
1ã€æ–™æ¡¶ã€å¨è¢‹æˆ–æ‰‹æ‹‰è½¦è¾“é€æ¤è¾“逿–¹å¼ç®€å•ã€è®¾å¤‡æŠ•å…¥æˆæœ¬ä½Žï¼Œä½†å¼Šç«¯æ˜¯è¾“é€çŽ°åœºçŽ¯å¢ƒè„ä¹±å·®ï¼Œæ¯æ¶²æ•£å‘出刺激性气味,呛鼻ã€è¾£çœ¼ï¼Œé•¿æœŸåœ¨æ¤çŽ¯å¢ƒä¸‹å·¥ä½œä¼šä¸¥é‡å±å®³åˆ°äººä½“å¥åº·ã€‚在人å£çº¢åˆ©å³å°†æ¶ˆå¤±ï¼Œè€Œä¹ 主å¸åˆå¤§åŠ›æå€¡â€œç»¿æ°´é’山就是金山银山â€çš„环ä¿ç†å¿µæ”¿ç–下,æ¤è¾“逿–¹å¼æžä¸å¯å•ü/span>

2ã€èžºæ—‹è¾“逿œºæ”¶é›†
æ¤è¾“逿–¹å¼æˆç†Ÿï¼Œå¸ƒç½®ç®€å•ã€‚ä½†å¼Šç«¯åœ¨äºŽï¼šå¯†å°æ€§å·®ã€å«æ°´çŽ‡é«˜æ—¶ç‰©æ–™ç²˜æ€§å¼ºï¼Œä¼šå µæ–™ï¼Œä¼šç²˜åœ¨èžºæ—‹ä¸»è½´ä¸Šã€å¶ç‰‡ä¹‹é—´ï¼Œä¸”输é€è·ç¦»æœ‰é™ï¼Œå¸ƒç½®ä¸çµæ´»ï¼Œèžºæ—‹ä¸»è½´å†…残留é‡å¤§ã€é’ˆå¯¹è¿™ç§è¾“逿–¹å¼ï¼Œä¸€èˆ¬å¯ç”¨äºŽå•独离心机或者有层高的输é€é¡¹ç›®ä¸Šã€ü/span>

3ã€çš®å¸¦è¾“逿œº
æ¤è¾“逿–¹å¼ä¸Žèžºæ—‹è¾“é€ä¸€æ ·ï¼Œæˆç†Ÿç¨³å®šï¼Œæ¯”螺旋输é€è·ç¦»é•¿ã€‚ä½†å¼Šç«¯æ˜¯ï¼Œå¯†å°æ€§å·®ï¼Œæ— æ³•å¤„ç†æ¯æ¶²çš„æŽ’æ”¾ã€æ— 法处ç†éš”爆充氮ç‰é—®é¢˜ï¼Œè¾“é€çŽ¯å¢ƒä¸Šç”šè‡³æ¯”æ–™ä»“è¾“é€çŽ¯å¢ƒè¿˜è¦æ›´å·®ï¼Œå› æ¤ï¼å·²ç»å‡ 乎没有ä¼ä¸šé€‰ç”¨è¿™ç§è¾“逿–¹å¼Žü/span>

4ã€ç®¡é“¾è¾“逿œºæ”¶é›†
æ¤ç±»è¾“逿–¹å¼æ˜¯ç›®å‰ç»å¤§å¤šæ•°å®¢æˆ·çš„首选方å¼ã€‚æ¤æ–¹å¼ä¼˜ç‚¹æ˜¯ï¼šè®¾å¤‡è¿è¡Œå¹³ç¨³ã€çµæ´»ã€è¾“é€è·ç¦»é•¿ï¼Œèƒ½æ›´å¥½çš„解决在物料收集和输é€è¿‡ç¨‹ä¸çš„密é—ã€éš”爆ã€å……æ°®ã€ä¸å µæ–™ç‰é—®é¢˜ã€ü/span>

å¼—æ ¼æ£®è¾“é€æœºæ¢°ï¼ˆå¸¸å·žï¼‰æœ‰é™å…¬å¸æˆç«‹äºŽ 2014 年,是一家专注于粉体物料拆包ã€è¾“é€ã€è®¡é‡é…æ–™ã€ç¦»å¿ƒç‰©æ–™æ”¶é›†çš„专业型ä¼ä¸šã€‚截æ¢åˆ° 2021 å¹ 7 月底,公å¸çŽ°æœ‰å‘˜å· 85 äººï¼Œå…¶ä¸æœç§‘以上å¦åŽ†çš„ä¸“ä¸šæŠ€æœ¯äººæ‰ 25 人,生产人员 48 人,å„类专业生产设备é½å…¨ã€‚å…¬å¸ç§‰æ‰¿ä¼˜ç§€çš„物料处ç†ç†å¿µå’ŒæŠ€æœ¯ï¼Œç§‰æ‰¿ 10 多年æ¥ä¸“ä¸šã€æ•¬ä¸šã€ç²¾ä¸šçš„æœåŠ¡ç†å¿µï¼Œä¸ºç”¨æˆ·æä¾›çœŸæŒšçšæœåŠ¡å’Œå…¨ä¸–ç•Œæ€§ä»·æ¯”æœ€ä¼˜çš„ç‰©æ–™å¤„ç†ç³»ç»Ÿã€
å…¬å¸åœ°å€ï¼šæ±Ÿè‹çœå¸¸å·žå¸‚é’Ÿæ¥¼åŒºæ¾æ¶›è· 58 å¶ü/span>
è”系人:å™å…ˆç”电è¯ï¼?3515269469
网å€ï¼šwww.czfgs.com邮箱ï¼?851677050@qq.com
3415
0
-
1煤气æˆåˆ†ä¸Žçƒå€¼ç›‘æµ?陕北大型能æºåŒ–å·¥ä¼ä¸šæ°”体浓度与çƒå€¼ç›‘测项ç›?/a>
- æ— å¤ä½ŽçƒŸé˜»ç‡ƒææ–™ä¸ç‚黑å«é‡æ£€æµ‹ç»“果异常情况的分æž
-
3GB 36246-2018ä¸å°å¦åˆæˆææ–™é¢å±‚è¿åŠ¨åœºåœ°å…¨æ–†ü/a>
- ASTM-D638-2003--䏿–‡ç‰?塑料拉伸性能测定方法
-
5GBT 15065-2009 电线电缆用黑色èšä¹™çƒ¯å¡‘æ–™
-
6GB_T2951.41-2008电缆和光缆ç»ç¼˜å’ŒæŠ¤å¥—ææ–™é€šç”¨è¯•验方法
-
7GBT 13021-2023 èšçƒ¯çƒƒç®¡æå’Œç®¡ä»¶ ç‚黑å«é‡çš„æµ‹å® 煅烧和çƒè§£æ³•
-
8PEG熔èžç›¸å˜æ¸©åº¦æµ‹è¯•
- 致密化压力对石榴石固æ€é”‚ç”µæ± æˆåž‹å’Œæ€§èƒ½çš„影哌ü/a>
- EVAåž‹çƒç†”èƒ¶ä¹¦åˆŠè£…è®¢å¼ºåº¦æ£€æµ‹ä¸Žè´¨é‡æŽ§åˆ¶ç ”ç©¶
- 自动çƒåŽ‹æœºçš„å‘å±•è¶‹åŠ¿æ˜¯æ€Žæ ·çš„ï¼Ÿ
- ç”¨æˆ·è®ºæ–‡é› â–化å¦å¸é™ â–铱-铼共沉积乙醇处ç†åŽSiO2载体催化剂应用在甘油氢解å应
- 为什么近期å•å£ç¢³çº³ç±³è§’(CNHï¼‰çš„ç ”ç©¶è¿›å±•å€¼å¾—å…³æ³¨ï¼žü/a>
- 为什么介å”SiO2在è¯ç‰©é€’é€é¢†åŸŸçš„应用越æ¥è¶Šå¤šï¼žü/a>
- FRITSCH飞驰çƒç£¨â€”—ä¸é”ˆé’¢ä»‹å¯¼çš„æ°´ä¸çƒç£¨æ¡ä»¶ä¸‹å®šé‡H2生æˆå®žéªŒç ”ç©¶
- 为什么MoS2åœ¨å‚¬åŒ–é¢†åŸŸçš„ç ”ç©¶è¿›å±•å€¼å¾—å…³æ³¨?
- 磷酸化修饰鬼臼果多糖的制备åŠç”Ÿç‰©æ´»æ€?/a>
- DSR论文解读:Advanced Science News 报é“ä¸ç§‘院长春应化所新型éžé“‚å‚¬åŒ–ææ–™ç ”ç©¶æˆæžœ
- High-throughput preparation, scale up and solidification of andrographolide nanosuspension using hummer acoustic resonance technology(纳米混悬剂制备的å‰çž»æ€§æŠ€æœ - 蜂鸟声共振)
- 扫æç”µé•œä¼˜ç§€è®ºæ–‡èµæžï½œé£žçº³å°å¼æ‰«æç”µé•œç”µæžææ–™ä¸Šçš„应ç”?/a>
- 扫æç”µé•œè®ºæ–‡èµæž-å¹²æ—±å½±å“æ¨æ ‘å¶ç‰‡åŠæ¬¡ç”Ÿæœ¨è´¨éƒ¨å‘è‚²çš„åˆ†åæœºåˆµü/a>
- 压实度与密实度的区别
- 振实密度和压实密度的关系
- 勃姆石专用气æµç²‰ç¢Žæœºåˆ†çº§æœºæ‰“散机

