
际科控制技术(北京)有限公号/p>

已认?/p>
干熄焦预存室、一次除尘高温料位仪表应用解决方桇/div>
际科控制 2025/07/17 | 阅读?57
产品配置单:
方案详情9/div>
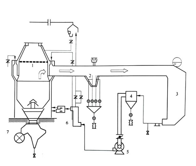
一、干熄焦工艺简今/p> 1.1 干熄焦的原理 所谓干熄焦工艺,是相对湿熄焦而言的,是采用惰性气体将红焦隔绝氧气降温冷却的一种熄焦工艺方法、/p> 在干熄焦工艺过程中,红焦从干熄炉顶部装入,低温惰性气体由循环风机鼓入干熄炉冷却段红焦层内,吸收红焦显热,冷却后的焦炭从干熄炉底部排出,从干熄炉环形烟道出来的高温惰性气体流经干熄焦工艺锅炉进行热交换,锅炉产生蒸汽,冷却后的惰性气体由循环风机重新鼓入干熄炉,惰性气体在封闭的系统内循环使用、/p> 1.2 干熄焦装置的组成 干熄焦工艺主要由干熄炉、装入装置、排焦装置、提升机、电机车及焦罐台车、焦罐、一次除尘器、二次除尘器、干熄焦工艺锅炉单元、循环风机、除尘地面站、水处理单位、自动控制部分、发电部分等组成。其结构如下 1-1 所示: 1-1 干熄焦工艺流程图示意国/p> 1-干熄炉;2-1DC(一次除尘器);3-锅炉?-2DC(二次除尘??—循环风机;6—给 水预热器?-旋转密封阀 1.3 干熄焦的工艺过程 从炭化室推出的红焦由焦罐台车上的圆形旋转焦罐(有的干熄焦工艺设计为方形焦罐)接收,焦罐台车由电机车牵引至干熄焦工艺提升井架底部,由提升机将焦罐提升至提升井架顶部;提升机挂着焦罐向干熄炉中心平移的过程中,与装入装置连为一体的炉盖由电动缸自动打开,装焦漏斗自动放到干熄炉上部;提升机放下的焦罐由装入装置的焦罐台接受,在提升机下降的过程中,焦罐底闸门自动打开,开始装入红焦;红焦装完后,提升机自动提起,将焦罐送往提升井架底部的空焦罐台车上,在此期间装入装置自动运行将炉盖关闭、/p> 装入干熄炉的红焦,在预存段预存一段时间后,随着排焦的进行逐渐下降到冷却段,在冷却段通过与循环气体进行热交换而冷却,再经振动给料器、旋转密封阀、溜槽排出,然后由专用皮带运输机运出、/p> 冷却焦炭的循环气体,在干熄炉冷却段与红焦进行热交换后温度升高,并经环形烟道排出干熄炉;高温循环气体经过一次除尘器分离粗颗粒焦粉后进入干熄焦工艺锅炉进行热交换,锅炉产生蒸汽,温度降至 160℃的低温循环气体由锅炉出来,经过二次除尘器进一步分离细颗粒焦粉后,由循环风机送入给水预热器冷却至 130℃,再进入干熄炉循环使用、/p> 1.4 干熄焦的优点 ①焦炭质量相对湿熄焦明显提高,产品市场更有竞争力:/p> ②充分利用红焦显热,节约能源,符合双碳双控政策要求; ③较低有害物质排放,保护环境,响应国家环保政策、/p> 二、干熄焦一次除尘(1DC)介绌/p> 2.1 一次除尘器的功胼/p> 干熄焦一次除尘系统是干熄焦装置的重要组成部分,干熄炉内循 环气体中的粉尘是磨蚀性很强的物质,从干熄炉出来的循环气体含尘 质量浓度约为 10~13g/m³。为了延长锅炉的使用寿命,确保锅炉在 常生产时安全稳定运行,在干熄炉的出口与锅炉之间设置一次除尘器。一次除尘器是利用重力除尘原理将循环气体中大颗粒焦粉进行分离 经重力沉降室除尘后,循环气体粉尘浓度将为 7~10mg/m³,进入锅炉, 此时含尘气体对锅炉内部磨损不大、/p> 如果一次除尘效果不良,大量的粗粒焦粉进入锅炉,磨损锅炉炉壁和炉管,影响锅炉的安全运行并降低锅炉的使用寿命、/p> 2.2 一次除尘器结构及运行过稊/p> 一次除尘结构如下图 2-1 所示,主要由壳体,金属支架及砌体构成,工作为负压状态。外壳用钢板焊制,内衬为耐磨耐火砖。为了提高一次除尘器的除尘效率,在除尘器中会设有挡墙、/p> 一次除尘器的底锥部出口分隔成漏斗状,下面连接双叉溜槽灰斗, 灰斗内侧由浇注料砌成,灰斗下方连接水冷套管。焦粉经过重力除 后落入灰斗内,此时焦粉温度在 800~980℃,焦粉再通过水冷套管冷却至常温后(主要是利用循环水流动降温),经过格式排灰阀控制进入灰仓、/p>
2-1 一次除尘器结构示意国/span> 三、一次除尘灰斗料位控刵/p> 3.1 一次除尘灰斗料位控制的原因 ①一次除尘灰斗料位是干熄焦系统的重要检测点,如果一次除尘灰斗料位过高,将导致一次除尘器仓的焦粉进入氮气循环通道,高速气流带动焦粉对循环风机和锅炉换热管进行冲刷,严重时会导致锅炉爆管,影响整个系统的安全运行和正常生产计划、/p> ②如果一次除尘灰斗料位过低或者排空时,高温红焦粉直接落入下部水冷套管,将烧坏水冷套,坏损部位和排空情况时会引入空气进入负压运行的氮气循环通道,引起焦粉的燃烧,影响系统的安全运行、/p> 3.2 一次除尘料位控制的方案 一次除尘灰的放料控制是通过格式排灰阀的启停来实现的,对于格式排灰阀有手动控制和自动控制两种方案、/p> 手动控制主要是通过参照水冷套下端的温度变送器设定的温度或者一次除尘灰斗的观察孔的情况,不定期进行排料。自动控制可以通过时间控制、温度控制、料位控制三种方案来实现、/p> 3.2.1 自动控制方案—时间控刵/p> 时间控制方案是通过设计和生产经验数据,采用计时器操作法 即按经验给定格式排灰阀排灰运转时间和排灰间隔时间,这种排灰方法需要丰富的操作经验和高度责任心,因干熄焦生产受炼焦检修时间和干熄焦设备检修及突发性故障的影响,循环气体中焦粉含量也在不断的发生变化,这就要求不断调整格式排灰阀的排灰运转时间和间隔时间,遇到特殊情况还要关停格式排灰阀,若排灰时间控制不当,将致使水冷套管内焦粉流速太快,温度剧增,灼热焦粉未经充分冷却即下排,造成水冷套管下方法兰处局部高温,甚至可能把水冷套管内的焦粉排空,这将直接导致空气从格式排灰阀进入双叉溜槽及一次除尘器本体内与热焦粉发生燃烧,造成高温事故,导致一次除尘系统的损坏、/p> 3.2.2 自动控制方案—温度控刵/p> 采用温度自动控制方案是随着近几年大型干熄焦装置的应用的增多出现的一种排灰控制思路,由于大型干熄焦配套的一次除尘灰斗容积也大,所以灰斗内存料会多,这基本上消除了排空带来的安全风险。但温度控制主要是将水冷套管下方的热电阻温度传感器设定到240℃左右,当排灰温度大于此温度时就停止排灰。此种方案下,如果水冷套的部分通道出现堵塞,排灰仍在进行,但当高温的红焦会顺着未被堵塞的通道排到水冷套末端的温度传感器位置处时会引起温度上升,这时灰斗内的实际料位仍可能偏高,但此控制方案下就停止了排灰动作,久而久之灰斗内的料位就会越来越高,这样本来通过重力除尘降下来的高温一次除尘灰又被卷扬到干熄焦气体循环系统中, 会造成对循环风机和锅炉管壁的磨损、/p> 3.2.3 自动控制方案—料位控刵/p> 料位控制方案是通过在溜槽灰斗内安装高温物位检测器,通过检测物料的高低位置,然后给出信号来控制格式排灰阀的启停的 根据使用料位数量的不同,料位控制方案又可分为如下三种形式9/p> ①高料位+时间控制:即现场使用一套高温料位开关作为高料位检测,当焦粉到达高料位时,料位计(物位检测器)给出信号到中控室,触发格式排灰阀开启,同时系统计时器开始计时,10S 名/p> (不同现场灰斗以及水冷套管容积大小,时间上会有不同)关闭格式排灰阀,此控制方案的优点是使用料位计数量少,相对经济,缺点是对于在格式排灰阀因故障持续保持开启状态的情况下,不能自动检测出来,存在焦粉放空的风险、/p> ②高料位+时间+低料位控制:即现场使用两套高温物位检测器 当高料位开关报警时,时间继电器触发计时信号,同时格式排灰阀 打开放灰,当低料位开关报警时或者设定的排灰时间信号达到时, 两者有任意一个信号到达,格式排灰阀都自动关闭。此方案增加 排空情况的检测,保证了系统的安全性,当格式排灰阀有问题未 及时关闭,排灰到低料位计以下位置后,中控室会一直收到低料位 的报警信号、/p> ③高料位+高高料位+时间+低料位控制:此方案是在方案②的基础上增加了高高料位的检测,主要目的就是防止在高料位误报带来的误动作。是将高料位和高高料位信号同时到来时,才执行格式排灰阀的排灰动作、/p> 3.3 一次除尘料位仪表的应用中存在的问题 一次除尘料位仪表现有两种型式,一种是高温静电容料位开兲/p> (接触式测量),一种是高温微波料位开关(非接触式测量) 高温静电容料位开关虽说在干熄焦行业应用较早,业绩也多,但在使用过程中存在着诸多问题,已经成为干熄焦行业的一个测量难题。静电容料位开关基于电容技术,将无线电频率施加在探头上 对周围的环境进行连续分析,由于所有介质的介电常数和导电性均不同于空气,当探头接触到介质时所引起的微小电容量的变化被电路检测并转换成开关信号输出。其外观结构如下图所示,该原理的产品在干熄焦一次除尘应用过程中存在如下弊端9/p> ①焦粉粘附在高温静电容的探头部分上,容易产生误报高料位。由于焦粉具有导电性,当膨料或者挂料时,焦粉会粘附在高温静电容料位开关上,使电容值发生变化,产生误报。粘附严重时,通过调节静电容料位开关的二次表也无法消除报警,必须人工拔出料位计,清除粘附,才能恢复正常、/p> ②高温静电容料位开关物理结构导致使用寿命短。高温电容料位开关传感器由不同材质的材料组合制成,金属材料的热膨胀系数是陶瓷材料的数倍,如果灰斗内部温度急升急降变化剧烈,不同材料的膨胀与收缩程度不同,久而久之,必然使高温静电容料位开关三部分之间出现变形直至出现间隙,焦粉进入电容内部,最终烧损、/p> ③国产静电容的问题:由于国产电容的电极和密封材料以及高温线缆的材料的在品控上相对差一些,很难保证持续 900℃高温下工作,使用寿命更短,个别现场使用两三个月就会烧坏、/p> 随着业主对非接触式高温料位的认可,非接触的微波测量产品应用也越来越多,有的产品在使用 2~3 年后会陆续的出现误报或者无法穿透的情况,更有其他品牌的产品则是因为其应用方案的不完善以及产品本身其穿透能力差,导致产品从安装应用之日起就不能正常发挥作用、/p> 由于目前不同原理的一次除尘料位开关在应用时或多或少存在的各种问题,而且此料位是连锁动作,其误动作会给生产带来一系列的麻烦,使得很多业主不再信任料位计的料位控制方案,不得不将排灰方式又改为温度控制模式或者手动排灰模式、/p> 四、干熄炉预存室料位控制方桇/p> 4.1 预存室料位测量方桇/p> 目前干熄炉料位测量的方式主要是采用静电容料位计、高温雷达料位计和皮带秤组成的测量系统进行干熄炉料位的演算、控制。如下图 4-1 所示: 4-1 干熄炉料位计使用示意国/p> 安装在顶椎段的高温雷达料位计可以连续测量炉内的料位情况,连续显示炉内的料位高度,也可以换算显示为炉内的重量、/p> 同样安装在顶椎段的静电容料位计为高料位,用于警示料位已到高料位,不允许再次装入或只允许再装入一罐焦炭,防止红焦溢出、/p> 安装在排焦皮带上的皮带秤用于测量排出焦炭的重量,可以参与干熄炉内焦炭总量的计算或者用来粗略校验高温雷达料位计、/p> 4.2 预存室料位存在的隐患 对于测量连续料位的高温雷达料位计来讲,随着雷达技术的逐步成熟,该产品的稳定性越来越好,大部分隔热处理做的比较好的厂家都能满足现场的测量需求、/p> 但对于高料位限位来讲,现在很多业主采用的是静电容或者传统的电磁波料位开关。此两种类型的料位开关最终动作的触发都是通过继电器常开点或者常闭点输出的信号,而继电器的常开或常闭点不管是否通电、仪表是否完好的状况下,都会一直输出信号、/p> 由于此处的高限位开关是最后一道全保障,平时基本上不会触发动作状态,料位计传感器常年处于高温工况下,即便是烧坏的情况下也不能保证开关一定发生动作,甚至传感器与二次表之间通讯中断 信号也不会发生变化,所以中控室人员基本上很难发现、/p> 然而通过添加焦炭来校准料位开关又存在一定的操作危险性,所以维护人员很难及时校验现场高温限位开关的好坏。如果因为没有及时检查出高温限位开关是否完好,导致红焦溢出,会带来非常严重的生产安全事故。虽说如此严重的问题,但由于属于小概率事件而往往被很多企业安全负责人所忽略、/p> 由此来看,一款带有自动校验和故障指示的高温限位开关可对现场的使用和维护是非常有必要的、/p> 五、J-CONTROL 高温料位解决方案 5.1 J-CONTROL 微波料位开关简今/p>
5.1.1 检测原琅/p> J-CONTROL 微波物位检测器是基 24GHZ 高频微波,采用多普勒微波原理制造,由发射器和接收器组成,是非接触式测量方式,特别适用于高温、重载物料工况的解决方案、/p> 微波发射?/p> 微波接收?/p> 5.1.2 产品优势 J-CONTROL 微波物位检测器在干熄焦装置上的应用优势9/p> ①非接触式测量,相对传统接触式料位仪表,具有稳定性好,使用寿命长等优点; ②采用高频微波原理进行检测,不带任何附件情况下传输距离长 110 米,增加高温附件状况下,一次除尘最远可传输距离 90 米以上,可穿透低介电系数物质:/p> ③发射器及接收器均为可视化窗口结构,具有就地显示功能,产品的调试均为在线面板操作,方便检修维护; ④发射器与接收器之间可实现四个不同频道的通信功能,有效避免相互干扰,可满足不同现场对于高位、高高位、低位、低低位的安装需求; ⑤发射器与接收器为对向安装,偏离角度?0°即可满足安装需求; ⑥应用于一次除尘时,高温附件插入深度在线可调,可适配多重现场需求; ⑦发射器自带复位测试功能,可实现仪表的实时在线校准,尤其对于预存室高温限位开关的应用时,可有效避免红焦溢出安全事故的发生:/p> ⑧J-CONTROL 可提供定制化服务解决方案,有效应对不同现场的特殊安装需求、/p> 5.2 J-CONTROL 高温微波料位开兲/p> 对于干熄焦一次除尘的料位测量,仪表需要具有耐高温、耐冲刷等特点,同时还得具有高可靠性、/p> J-CONTROL 的耐高温定制产品在没有氮气吹扫的情况下可连续在1150℃环境下工作,同时可提供氮气吹扫接口作为可选服务项。产品采用非接触式测量,所有传感器及元器件均为原装进口产品,充分保证了产品的耐用可靠、/p> J-CONTROL 微波物位检测器产品 2020 年首次在莱芜钢铁集团股份有限公司焦化厂使用以来,一直运行良好,从未误报。截至目前已经有 9 家焦化企业选择 J-CONTROL 产品对自家现场进行改造,使用产品 30 多套,这其中有的企业是在尝试试点改造后对产品进行复购的。改造产品包括:高温雷达料位计,预存室高限位料位开关, 一次除尘高温料位开关,二次除尘料位开关、/p> ①预存室高温雷达料位计改造示例: ②预存室高限位料位开关改造示例: ③不同形式灰斗一次除尘高温料位开关改造示例: ④二次除尘灰斗料位开关改造示例: ⑤荣誉证书: 相关产品 更多![]()
|