看了斗式提升机的用户又看亅/p>
留言询价
虚拟号将 180 秒后失效
使用微信扫码拨号
【斗式提升机概述【/span>
斗式提升?以下简称斗提机)系采用板式套筒滚子链为牵引构件,料斗固定在链板上并连续布置,用流入式装载,低速重载卸料的斗提机。本机适用于输送中等及大块状的、易碎的和磨琢性的堆积密度小于2t/m3的物料,物料温度不超?500C,如块煤、矿石、卵石、焦碳等、/span>
【设备主体结构【/span>
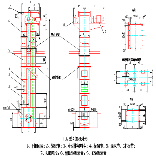
斗式提升机由上部区段、中部机壳、下部区段、驱动装置和内牵引件组成(见图1)。上部区段由上部机壳、头罩、传动滚筒和传动链轮组组戏中部机壳与上下部连接,起支撑防护和密封作用,分为标准节、非标准节和带检视门的标准节,有单通道和双通道两种形式(其中选双通道主要是加强整机的中间节强?;下部区段由下部机壳和拉紧滚子组或拉紧链轮组组戏驱动装置由驱动平台、电动机、减速器传动件和逆止器等组成;内牵引件由料斗、橡胶输送带或圆环链、套筒滚子链等组成、/span>

暂无数据
斗式提升机的工作原理介绍>/li>
斗式提升机的使用方法>/li>
斗式提升机多少钱一台?
斗式提升机使用的注意事项
斗式提升机的说明书有吗?
斗式提升机的操作规程有吗>/li>
斗式提升机的报价含票含运费吗>/li>
斗式提升机有现货吗?
斗式提升机包安装吗?
手机版:

