处理量:
出料1000-3000L(L(/span>物料类型9/p>其它
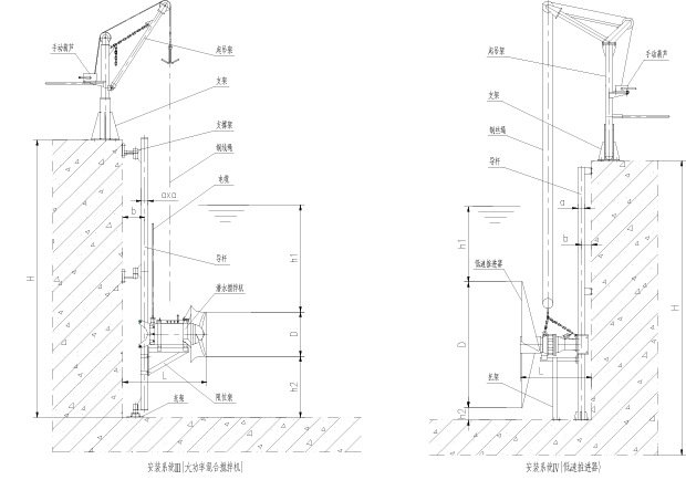
工作原理9/p>立式
看了宜兴 古蓝冲压式潜水搅拌机 QJB4/6-400/3-960 不锈钢搅拌机的用户又看了
留言询价
虚拟号将180秒后失效
使用微信扫码拨号





![]()
适用范围9/span>
搅拌机在下列条件下应能正常连续运行:
1 **介质温度不超?0°C:/p>
2 介质的PH 值在5~9 间;
3 液体密度不超?150kg/m3:/p>
4 长期潜水运行,潜水深度一般不超过20m、/p>
重点注意事项9/span>
潜水搅拌机必需完全潜入水中工作;不能在易燃易爆或有强腐蚀性液体的环境中工作;钢膨胀螺栓须按要求固定,安装完毕后,必须将电缆拉紧固定?
潜水推流器选型时,浆叶直径超过2M,建议使用齿轮箱减速机.
![]()
性能特点9/span>
1 结构紧凑、操作维修简单、安装检修方便、使用寿命长:/p>
2 叶轮具有**的水力设计结构,工作效率高,后掠式叶片具有自洁功能,可防杂物缠绕、堵塞;
3 与曝气系统混合使用可使能耗大幅度降低,充氧量明显提高,有效防止沉淀:/p>
4 电机绕组绝缘等级F 级,防护等级为IP68,选用优质轴承和电机防凝露装置,使电机的工作更安全:/p>
5 两道机械密封:/p>
![]()

![]()
性能参数9/span>
搅拌机在额定电压380V,频率为50Hz,绕组绝缘等级F 级,防护等级IP68,工作制式Ⅰ条件下、/p>



选型注意事项9/span>
潜水搅拌机的选型是一项比较复杂的工作,选型的正确与否直接影响设备的正常使用,作为选型的原则就是要让搅拌机在适合的容积里发挥充分的搅拌功能,一般可用流速来确定。根据污水处理厂不同的工艺要求,搅拌?*流速应保证?.15~0.3m/s 之间,如果低于0.15m/s 的流速则达不到推流搅拌效?超过0.3m/s 的流速则会影响工艺效果且造成浪费。所以在选型前首先确定潜水搅拌机运用的场所,如:污水池、污泥池、生化池;其次是介质的参数,如:悬浮物含量、粘度、温度、PH 值;还有水池的形状、水深等。搅拌机所需的配套功率是按容积大小、搅拌液体的密度和搅拌深度而确定的,根据具体情况采用一台或多台搅拌机、/p>
混合搅拌垊/span>
1 根据图B1 或表B1 确定待搅拌介质的污泥校正系数、/p>
2 根据图B2 或表B2 确定搅拌池的池型校正系数、/p>
3 按每立方米清水所需耗功5 w,乘以污泥校正系数,再乘以池型校正系数,得出每立方米待混合搅
拌介质所需耗功的实际值,再乘以待搅拌介质的体积,得出整池待混合搅拌介质所需的功率、/p>
低速推流型
1 根据图B1 或表B1 确定搅拌池的池型校正系数、/p>
2 根据图B2 或表B2 确定待搅拌介质的污泥校正系数、/p>
3 根据搅拌介质初始流速y,通过图B3 确定单位流量的耗功、/p>
4 用搅拌介质初始流速y 乘以叶轮旋转时所形成的截面积计算出搅拌机的流量、/p>
5 用搅拌机的流量乘以单位流量的功耗,再乘以污泥校正系数和池型校正系数,即可得出整池介质所
需的功率、/p>






![]()
不同大小的设备用不同的装箱,保证设备外观完好 ,安装系统支架因为外观不规则,我们会用软材包装好一起发送,如在运输过程中有所损失,请谅解、/span>

物流运输箱内:设备主?合格?安装说明?配件


古蓝(GuLan)是环保设备的优秀生产型企业,公司致力于打造环保行?*秀的环保设备供应商。公司位于江苏省南京市六合区政府科创中心,是一家拥有自主研发及生产销售的企业、br/>古蓝环保秉承“精心设计,技术创新,持续改进,顾客满意”的质量方针,精益服务,精准求实,诚信共享,创业创新。目前,古蓝环保已与国内外多家知名环保专业公司、高等院校和环保研究机构建立长期战略合作伙伴关系,为保护环境,造福人类作贡献、br/>公司主营环保产品有:
混合搅拌机系刖 QJB潜水搅拌机\QJB冲压式搅拌机\QJB低速推流搅拌机\双曲面搅拌机\桨式搅拌机\框式搅拌机\污泥回流泵\浮筒搅拌 潜水曝气系列:射流曝气机\离心曝气机\深水曝气机\浮筒搅拌曝气 拦污输送系列:回转式机械格栅\无轴螺旋输送机\螺旋压榨机\沉砂池除砂机\砂水分离 刮泥机系列: 周边传动\中心传动 行车式\虹吸式等刮吸泥机 水处理设备: 滗水器\地埋式\管式静态混合器\闸门 潜水泵系列: AS AV WQ AF型潜污泵 、br/> 南京古蓝环保设备实业有限公司的诚信、实力和产品质量获得业界的认可。欢迎各界朋友莅临参观、指导和业务洽谈、/span>![]()

| 联系人: | 徐顺?nbsp;先生 (销售部 经理(/span> |
| 电话9/span> | 86 025 6611**** |
| 移动电话9/span> | 13952055003 |
| 传真9/span> | 86 025 5763**** |
| 地址9/span> | 中国 江苏 南京市六合区 雄州科创中心300叶/span> |
| 邮编9/span> | 211500 |
| 公司主页9/span> | |
暂无数据
宜兴 古蓝冲压式潜水搅拌机 QJB4/6-400/3-960 不锈钢搅拌机的工作原理介绍?
宜兴 古蓝冲压式潜水搅拌机 QJB4/6-400/3-960 不锈钢搅拌机的使用方法?
宜兴 古蓝冲压式潜水搅拌机 QJB4/6-400/3-960 不锈钢搅拌机多少钱一台?
宜兴 古蓝冲压式潜水搅拌机 QJB4/6-400/3-960 不锈钢搅拌机使用的注意事顸/li>
宜兴 古蓝冲压式潜水搅拌机 QJB4/6-400/3-960 不锈钢搅拌机的说明书有吗>/li>
宜兴 古蓝冲压式潜水搅拌机 QJB4/6-400/3-960 不锈钢搅拌机的操作规程有吗?
宜兴 古蓝冲压式潜水搅拌机 QJB4/6-400/3-960 不锈钢搅拌机的报价含票含运费吗?
宜兴 古蓝冲压式潜水搅拌机 QJB4/6-400/3-960 不锈钢搅拌机有现货吗>/li>
宜兴 古蓝冲压式潜水搅拌机 QJB4/6-400/3-960 不锈钢搅拌机包安装吗>/li>

